Мы угадали ваш город?
Да, верно Нет, другой
0
8-800-333-85-37
Бесплатно по России
Заказать звонок

Проектирование котлов наружного размещения

Заказав бесплатный выезд, Вы получите

  • Консультацию инженера по котельным установкам
  • Стоимость проекта котла наружного размещения
  • Предварительную цену монтажа
  • Помощь в получении технических условий
  • Подробный план реализации КНР под ключ
Выезд бесплатно в течение
24 часов

Группа компаний НПК «Завод модульного энергооборудования» осуществит быстрое и комплексное проектирование котлов наружного размещения и уличных газовых котлов в Кемерово и Кемеровской области, и по всей России, проектирование тепловых пунктов зданий для работы от КНР, работающих на любых видах топлива, получение технических условий и исходных данных.

Мы проектируем котлы наружного размещения (в том числе шкафного типа) для промышленных и гражданских объектов: от предварительного подбора решений до рабочей документации и сопровождения согласований в ресурсоснабжающих организациях (АО «Газпром Газораспределение», АО «Мосгаз», АО «Мособлгаз»). Работаем так, чтобы проект проходил государственную и негосударственную экспертизу, а также экспертизу Промышленной безопасности при реконструкции и техническом перевооружении существующих котельных за счет установки КНР.



Если Вы подбираете вариант технического решения, и хотите заранее свериться с ключевыми требованиями законодательства и строительных норм, начните с нашей статьи «Требования к установке котлов наружного размещения газовых и монтажу уличных газовых котлов, их проектированию и монтажу».


Мы подскажем, какая схема будет оптимальной и какой состав документации Вам потребуется на объекте строительства.

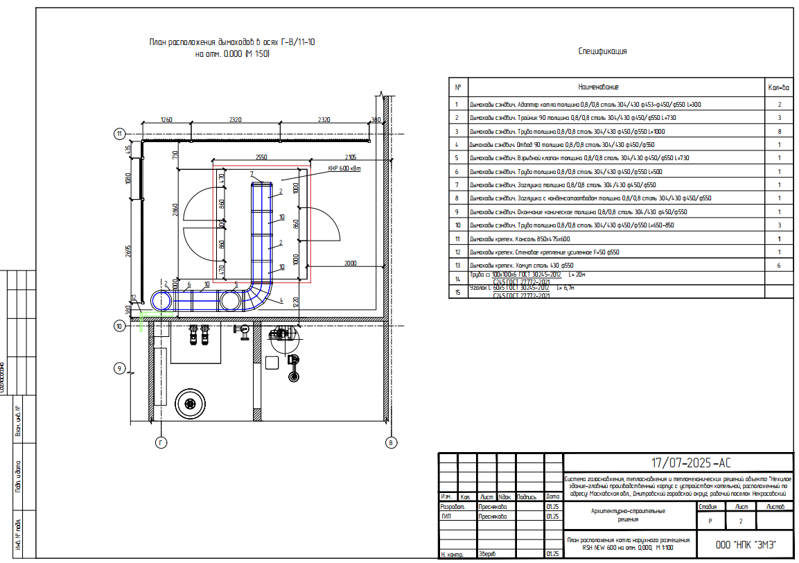
Котел наружного проект раздел АС  Котел наружного проект раздел ТМ


Почему мы?

  • Занимаемся проектированием котлов наружного размещения более 20 лет. Это наш основной профиль – сотни объектов по всей России!
  • Без проблем проходим экспертизу – опытные специалисты проектируют с учётом требований промышленной безопасности, пожарной безопасности и отраслевых норм газоснабжения, теплоснабжения и автоматизации.
  • Делая рабочий проект, закладываем решения, удобные для монтажа и обслуживания, компоновку, доступы, обвязку, дымоудаление, автоматику, узлы учета и диспетчеризацию.
  • Сопровождаем при прохождении экспертизы и помогаем устранить замечания без затягивания сроков.
  • Выдаем понятную дорожную карту, где указано, что необходимо от Заказчика, что получаете на выходе, где возможны согласования и какие «узкие места» бывают.
  • Прозрачность работы и понятные результаты!

Вы получите бесплатную консультацию, позвонив нам по телефону:
8-800-333-85-37

Или оставив заявку на звонок

ЗАКАЗАТЬ ЗВОНОК



Проектирование котлов наружного размещения под ключ

Работа по разработке проекта выполняется поэтапно:

  • Сбор исходных данных;
  • Выбор и согласование технического решения с Заказчиком;
  • Разработка проектной и рабочей документации, расчёты и подбор оборудования.

Более подробно опишем этапы проектирования ниже.

Сбор исходных данных для проектирования:

К исходных данным относятся:

  • тепловые нагрузки зданий-потребителей (расчет лимитов газопотребления, расчет максимального часового расхода газа – МЧРГ);
  • температурные графики контуров отопления, вентиляции и ГВС, требуемые режимы работы котлов по периодам, требования к резервированию котлов;
  • данные по площадке и точкам подключения (топографическая съемка участка);
  • определение места размещения КНР;
  • определение точки подключения воды, канализации, электроэнергии, согласование места размещения ГРПШ (пункта редуцирования) и коммерческого узла учета газа.

На этом этапе важно учесть нюансы: круглогодичная работа КНР или сезонная, нагрузка в переходный период (желательно не должна превышать минимальную теплопроизводительность одного котла), возможны ли скачки по давлению газа (особенно для СУГ, сжиженного углеводородного газа, важно предусмотреть коллектор на газопроводе перед котлом после испарителя), и какие требования у Заказчика к мониторингу и диспетчеризации (GSM-уведомление, или полноценное управление КНР через OwenCloud или систему Zont-online с протоколами Modbus с линями связи RS-485).

Выбор и согласование технического решения

Для многих объектов оптимальным становится каскад из нескольких котлов с автоматическим распределением нагрузки, так как это повышает надёжность, улучшает работу на частичных нагрузках и упрощает обслуживание. Но иногда рациональнее один котёл с резервом по мощности или иной конфигурацией – всё зависит от режимов работы в летний, зимний и переходный периоды.

Котел наружного проект раздел АС   Котел наружного проект раздел КР

Критические ошибки Заказчиков и инженеров при проектировании КНР

Не принимать в расчет минимальную тепловую нагрузку в переходный период. В результате потребление тепла зданиями гораздо ниже минимальной теплопроизводительности одного котла, установленного в КНР – как результат, горелка котла включается/выключается десятки раз в час, что приводит к ошибкам автоматики и авариям.

Не предусматривать погодозависимое регулирование теплоносителя, а регулировать отопление зданий температурой подачи котлов – в переходный период температура подачи не выше 45 градусов C, а значит обратка в котел не выше 30 градусов C, что запрещено производителями котлов и ведет к низкотемпературной коррозии теплообменника, выпадению конденсата в котле и дымоходе, опусканию пламени к горелке для атмосферных котлов, отсутствию тяги в дымоходах, что сокращает срок эксплуатации котлов, и просто уничтожает их за один сезон, падает КПД.

Не замыкать циркуляцию теплоносителя в коллекторе котельного контура, или не устанавливать гидравлический разделитель/промежуточный теплообменник (постоянство гидравлического режима котлов главное правило проектирования котельных, расход воды через котел во всех режимах должен быть постоянным и превышать минимальный по паспорту) – системы отопления меняет гидравлический режим (прекратилась циркуляция через воздушное отопление и радиаторы при закрытии клапанов и термоголовок) и циркуляция через котлы меньше необходимой, что приводит к аварии и превышения температуры.

Мы всегда учитываем климатические условия, потому что наружная установка предъявляет требования к защите элементов от обмерзания, к организации дренажей, к предотвращению образования конденсата и к корректной работе дымоходов – толщина сэндвич-панели определяется климатической зоной, предусматривается установка приборов отопления и воздушного отопления при необходимости, применяются особые типы сталей для «северного исполнения».

Расчёты и подбор оборудования

Мы выполняем теплотехнические и гидравлические расчёты, подбираем котлы по мощности и диапазону регулирования, насосное оборудование, арматуру, расширительные баки, и, при необходимости, химводоподготовку.

Уделяем внимание газовой части и автоматике безопасности, дымоудалению и организации отвода продуктов сгорания, также увязываем электроснабжение, заземление, молниезащиту, узлы учёта и диспетчеризацию.

При проектировании наружного газопровода, ГРПШ и УУГ для КНР проводится гидравлический расчет и расчет на прочность и устойчивость газопровода.

Прохождение экспертизы проекта КНР

Если по вашему объекту требуется государственная или негосударственная экспертиза, а также экспертиза Промышленной безопасности - мы сопровождаем проект КНР на всех этапах рассмотрения. На практике успех экспертизы зависит не только от корректных расчётов, но и от качества исходных данных, принятых технических решений, полноты состава документации, и того, насколько прозрачно они отражены в документации и разделы увязаны между собой.

Мы заранее оцениваем вероятность замечаний и закрываем типовые проблемные места до подачи: компоновка и расстояния, безопасность газовой части, корректность решений по дымоудалению, автоматика и блокировки, увязка с электроснабжением и сетями, эксплуатационная безопасность. Далее формируем комплект в требуемом составе, подаем и сопровождаем рассмотрение: готовим пояснения, отрабатываем замечания, выпускаем корректировки и доводим комплект до положительного заключения в пределах согласованного договора и исходных ограничений.

Состав проектной документации на котел наружного размещения

Состав принят с учетом требований Градостроительного кодекса Российской Федерации (Федеральный закон от 29.12.2004 г. № 190), в соответствии с постановлением Правительства Российской Федерации от 16.02.2008 г. № 87, и других действующих норм:

  • АР, КР - Конструктивные и объемно-планировочные решения
  • Инженерное оборудование, сети, инженерно-технические мероприятия, технологические решения:
    ИОС 5.1 Система электроснабжения (внутренние сети),
    ИОС 5.2 Система водоснабжения (внутренние сети),
    ИОС 5.3 Система водоотведения (внутренние сети),
    ИОС 5.4.2 Тепловые сети,
    ИОС 5.5 Сети связи, комплексная автоматизация (внутренние сети),
    ИОС 6 Система газоснабжения наружного.
  • Технологические решения – ТХ

Состав рабочей документации проекта котла наружного размещения

Ниже перечислены разделы рабочей документации, которые мы обычно разрабатываем, и достаточные для монтажа:

  • Раздел АС — Архитектурно-строительные решения. Отображает архитектурно-градостроительный облик, внешний вид, цвет по RAL, расположение дымовой трубы, опор – для эстетики и сочетания с окружением, ограждения;
  • Раздел КР — Конструктивные решения. Фундаменты под котёл и ГРПШ, конструкции дымовой трубы, специальные виды креплений для газопровода и инженерных сетей.
  • Раздел ТМ — Тепломеханические решения. Главный раздел - сердце проекта. В нем разрабатывается тепломеханическая схема котла наружного размещения и теплового пункта здания, спецификация оборудования и материалов, диаметры трубопроводов, планы и разрезы для монтажа.
  • Раздел АТМ — Автоматизация тепломеханических процессов. Отображает функциональную схему работы автоматики КНР и ИТП (теплового пункта), показывающие приборы (манометры, термометры), датчики, защита котлов и сигнализаторы загазованности, аварийная сигнализация и система ОПС. Трассировка кабелей до шкафа управления и сигнализации.
  • Раздел ЭС — Электроснабжение (наружное). Электроснабжение, контур заземления, молниезащита, расчёт зоны защиты от прямых ударов молнии.
  • Раздел ЭМ — Силовое электрооборудование. Подвод питания к шкафу автоматики и оборудованию ИТП, насосному оборудованию, заземление оборудования теплового пункта.
  • Раздел ВК — Водоснабжение и канализация (внутренние системы). Подпитка котельного контура, теплового пункта, системы отопления зданий, горячее водоснабжение, напорные и безнапорные дренажные трубопроводы, химводоподготовка.
  • Раздел ГСН — Наружные газопроводы. Проект газопровода от границы участка до котла: профиль, глубина заложения, отметки, аксонометрическая схема, ГРПШ.
  • Раздел Техническое решение УУГ — Техническое решение коммерческого узла учета газа. Обязателен (в составе ГСН). Принципиальная схема УУГ, требует согласования с газоснабжающей организацией.

Жирным выделены разделы, обязательные при сдаче Ростехнадзору и ресурсоснабжающей организации (если она требуется). Остальные необходимы для качественного монтажа и эксплуатации.

Стоимость и сроки проектирования

КНР 400 - 1500кВт на 1 контур отопления и 1 контур вентиляции с ГВС (на 1 здание)

Стоимость проектирования Котла наружного размещения и Теплового пункта здания

Поз.

Наименование раздела Рабочей документации

Цена, руб.

Примечания

1

-  АС - Архитектурно-строительные решения (в части КНР и ГСН, узлы крепления дымоходов, дымовые трубы);

От 40000

 

2

-  КР - Конструктивные решения (в части КНР и ГСН узлы крепления дымоходов, дымовые трубы);

От 40000

 

3

-  ТМ - Тепломеханические решения (в части КНР и узла управления);

От 170000

 

4

-  ЭС - Электроснабжение;

От 70000

 

5

- ЭМ - Силовое электрооборудование (в части тепломеханических решений, водоснабжения и канализации, водоподготовки);

От 70000

 

6

-  АТМ - Автоматизация тепломеханических решений (в том числе КНР и узла управления в том числе автоматизация газового оборудования);

От 150000

 

7

-  ВК - Внутренние системы водоснабжения и кондиционирование (водоснабжение, канализация КНР, водоподготовка системы теплоснабжения);

От 90000

 

8

-  ГСН - Наружные газопроводы (внутри участка)

От 390000

При длине более 50 метров +500р/метр

9

- ТР УУГ (Тепломехническое решение на узел учета газа с системой телеметрии)

От 90000

 

 

ИТОГО

От 1110000

Срок проектирования от 1 месяца

Это ориентир для понимания состава рабочего проекта и его стоимости, точная стоимость зависит от исходных данных, протяжённости сетей, условий площадки и требований по автоматизации, диспетчеризации и мониторингу.

Желтым цветом выделены разделы, требуемые инспектором Ростехнадзора при сдаче объекта. Так же необходимы Акты скрытых работ и исполнительная документация на устройство фундамента.

Если требуется выполнять проектирование стадий П и Р, стоимость увеличивается на 50 процентов относительно указанной стоимости.

Документы по итогу работ

По итогам вы получаете комплект проектной или рабочей документации, достаточный для согласований, монтажа и последующей эксплуатации.

  • Пояснительная записка с принятыми решениями и исходными данными.
  • Технологические схемы котлов наружного размещения и тепломеханические решения.
  • Спецификации оборудования и материалов.
  • Планы, разрезы, узлы, компоновочные решения.
  • Схемы автоматизации, электроснабжения, сигнализации и при необходимости диспетчеризации.
  • Решения по дымоудалению и вентиляции.
  • Решения по газоснабжению, в составе проекта по согласованной границе ответственности.
  • Ведомости объемов работ , задания смежным разделам.
  • Сопровождение согласований и ответы на замечания по договоренности.

Звоните нам и получите бесплатную консультацию! Наши специалисты уточнят исходные данные, помогут составить грамотное ТЗ и предложат оптимальное решение по составу и бюджету. Ждем Вашего звонка!

Выберите ваш город
×
 Кемерово
Продолжая использовать наш сайт, вы соглашаетесь с условиями обработки cookie-файлов и пользовательских данных с помощью Яндекс.Метрика, необходимых для аналитики и улучшения качества работы сайта и сервиса. Запретить эти действия можно в настройках браузера